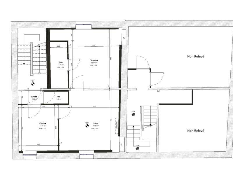
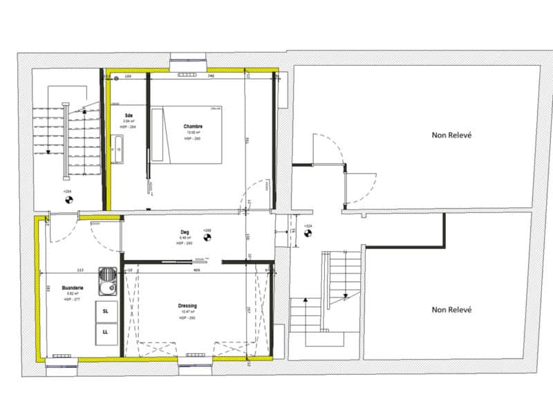
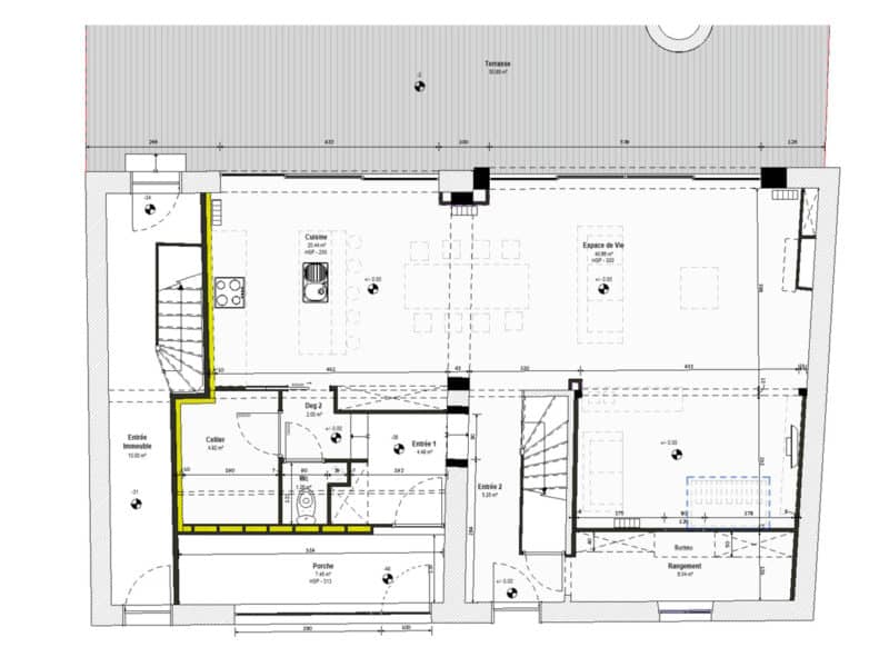
Relevé d’une maison avec son terrain
Lieu : Limoges (87)
Mission : Relevé d’une Maison avec son terrain avec JJ_LeScan
+ Dessiner les plans et coupe de l’EDL (Etats des lieux)
+ Dessiner les plans du projet fourni par le client
+ Monter le PC (Permis de construire)
Stats : 47 Scans
4 journées de travail
Client: Thomas ROUX – PMLT SOLUTIONS


















