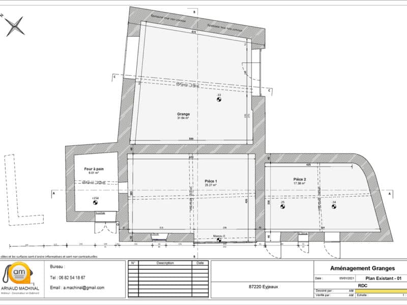
Plan 2D de deux granges pour un même logement
- Client :
M Stéphane AVERTY, maître d'oeuvre, nous demande de faire le plan, les façades et 3 coupes de l’existant de deux granges attenantes. De ces éléments il pourra par la suite, faire lui-même un plan de projet, à partir de notre travail, notamment en réunissant les deux granges pour un même logement (qui sera à louer).
Merci pour sa confiance.
- Demande :
Faire le plan 2D de l’existant des granges
Faire les façades et les coupes de l’existant des granges
- Travail réalisé :
- Levé de l’appartement à l’aide du FARO S70.
- Traitement et export des données à partir du Logiciel SCENE.
- Mise au net du plan, des façades à partir du Logiciel REVIT.
- Remise du plan et des façades en PDF
- Temps estimé :
2 journées (compris déplacement et installation)












