Levé d’un appartement à Limoges
- Client :
M.THOMAS ROUX, PMLT SOLUTIONS nous demande de faire le plan de l’existant d’un appartement, afin qu’il puisse par la suite, lui-même faire un plan de projet, à partir de notre travail.
- Demande :
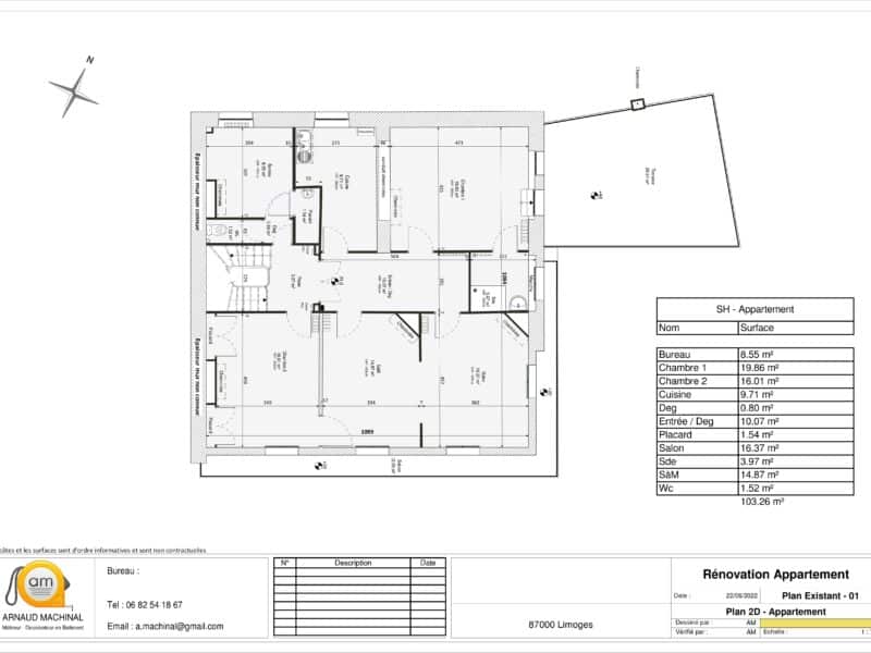
Faire le plan 2D de l’existant d’un appartement situé au dernier étage.
- Travail réalisé :
Levé de l’appartement à l’aide du FARO S70.
Traitement et export des données à partir du Logiciel SCENE
Mise au net du plan de l’appartement sur le Logiciel REVIT.
Mise en page du plan sur le Logiciel REVIT.
Remise plan en version PDF et DWG
- Temps estimé :
1 journée (compris déplacement et installation)










